Dávkování a balení prašných produktů

Tato technologie je určená pro balení prašných produktů, práškových produktů, koření, průmyslových směsí a podobně. Patentově chráněný systém vážení a dávkovač AF-100W umožňuje společně s balicím strojem VHP-690 přesné dávkování a zabalení produktu od prvního sáčku, až do spotřebování baleného produktu.

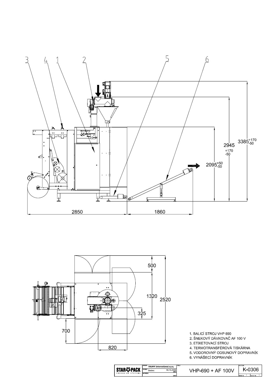
Popis zařízení:

Vážené součásti systému jsou uloženy do pomocného rámu zavěšeného na tenzometrické snímače sil. V průběhu dávkování specielním šnekovým dávkovačem je řídicím systémem sledována hmotnost dávkovaného produktu. Tato informace je základem řídicího procesu dávkování.

Dávkovač AF-100W je možné provozovat ve třech rozdílných režimech:

  1. provoz s vážením každé dávky
  2. provoz standardní bez vážení (umožňuje větší rychlost)
  3. kombinovaný provoz s progresivním řízením počtu cyklů s vážením a počtu cyklů bez vážení (po spuštění stroje jsou nejprve všechny sáčky váženy a je sledován počet otáček šneku, jakmile je počet otáček šneku v rámci požadované přesnosti stabilní, přechází stroj do režimu, kdy jsou střídány cykly bez vážení s cykly váženými)

Přesnost vážení vychází ze základní přesnosti vážního systému, který je s ohledem k hmotnosti táry 5g. Systém hlídá nastavenou minimální dávku a střední hodnotu váhy.

Vlastní dávkování provádí specielní šnekový dávkovač s automatickým doplňováním produktu. Aby nedocházelo k nekontrolovatelnému upadávání zboží při dávkování, je vedení šneku se šnekem opatřeno specielním způsobem uzavírání, kombinací sítka a klapky. Jednoduché a rychlé vyčištění dávkovače umožňuje specielní úprava dávkovače za pomoci mobilního ochozu pro přístup k dávkovači.

Aby při sanitaci nedošlo při vysouvání vážených součástí k poškození tenzometrů, vysouvá se pomocný rám ve vodících lištách, které se při této operaci nadzvednou pneumatickými válci. Vedení šneku je opatřeno závěsem pro zavěšení na tubusu, vyjímá se tedy vše jako jeden celek.

Hlavní výhody této technologie

  1. Nabízená technologie s patentově chráněným systémem vážení dávky v tubusu je vyvinuta specielně na balení širokého spektra různých koření, a průmyslových směsí typu Vysočina, Dietní salám, Polský salám, Tlačenka, atd.
  2. Umožňuje zabalení produktu od prvního sáčku, až do spotřebování baleného produktu, optimální řešení pro malé šarže.
  3. Výhodné a praktické navažování šnekovým dávkovačem namísto vibračními žlabovými vahami. Většinu produktů - směsí není možné dávkovat váhami, nebo je to velice problematické s ohledem na prašnost, nebo zanášení a sanaci žlabů.
  4. Rychlé a snadné čištění - sanace zařízení oproti vibračním vahám, provádí se pouze u doplňovacího šneku, vedení šneku se šnekem a násypky dávkovače.
  5. Hygiena provozu - bez prašnosti.
  6. Velmi dobrá přesnost dávkování.

Výkon balení:

Například 5000g v toleranci +-5g produktu výkonem 8 balení/min, při provozu vážení každé dávky. Výkon se bude zvyšovat když zvětšíme toleranci dávky, nebo když zvolíme jiný pracovní režim (např. kombinovaný provoz).

Přesnost vážení vychází ze základní přesnosti vážního systému, který je s ohledem k hmotnosti táry 5g. Systém hlídá nastavenou minimální dávku a střední hodnotu váhy.

 Balení prašných produktů (1) Balení prašných produktů (2)

GPS Global Pack Service – Individuální řešení vašich potřeb 

Navštivte též naší divizi Balicí stroje na www.stroje-vlasim.cz
Kontakt: office@gpservice.cz, tel. +420 317 847 216 | Webmaster: radek.simko@gmail.com
Administrace